"Walzmühle" Frauenfeld

01_1833_Randvedute_Isenring

Umbau und Renovation eines nationalen Schutzobjektes - Umnutzung des Industriegebäudes für Wohnungen

Adresse

Walzmühlestrasse 51/51a 8500 Frauenfeld

Erbaut

1832

Leistungen

SIA 102: Vorstudie, Vorprojekt, Bauprojekt, Baubewilligung

Planung

2021-2024

Spezialisten

SJB Kempter Fitze AG Frauenfeld
Amstein + Walthert AG Frauenfeld
Novum Bau AG Frauenfeld

02 Südansicht
Situationsplan
Situationsplan
Untergeschoss
Untergeschoss
Erdgeschoss
Erdgeschoss
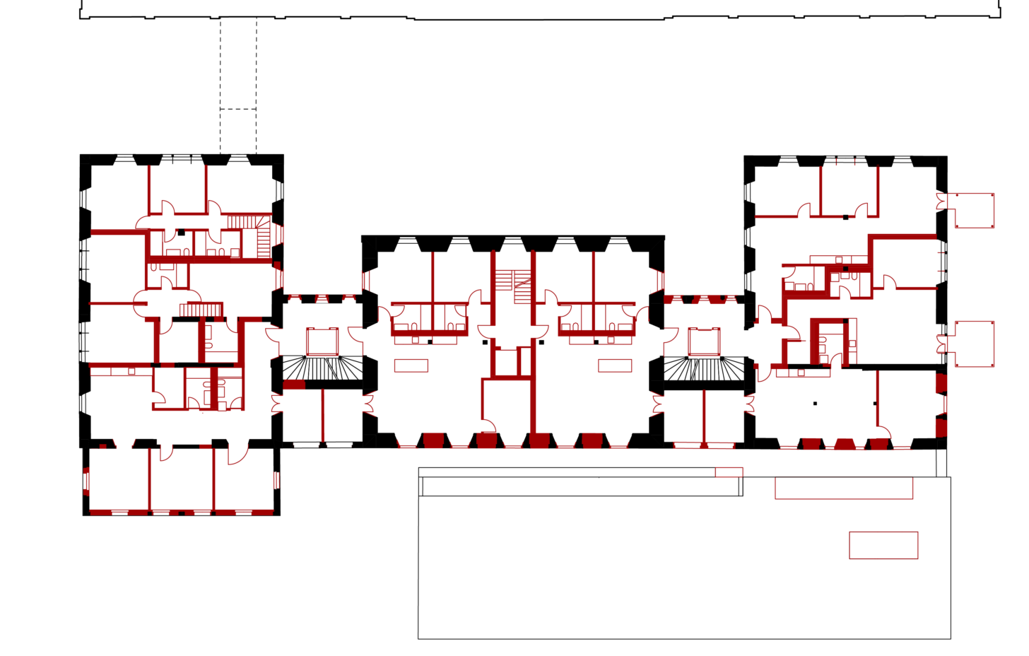
1. Obergeschoss
1. Obergeschoss
2. Obergeschoss
2. Obergeschoss
3. Obergeschoss
3. Obergeschoss
4. Obergeschoss
4. Obergeschoss
1. Dachgeschoss
1. Dachgeschoss
2. Dachgeschoss
2. Dachgeschoss
Dachaufsicht
Dachaufsicht
Längsschnitt
Längsschnitt
Ansicht Süd
Ansicht Süd
Ansicht West
Ansicht West
Ansicht Nord
Ansicht Nord
Ansicht Ost
Ansicht Ost
15 IMG 6444
17 IMG 8478
16 IMG 6504
18 IMG 8458
19 IMG 6625

© Pläne und Bilder: Pfister Schiess Topeano & Partner Architekten AG, Zürich
Titelbild: 1833, Zeichnung von J.B. Isenring, Helvetic Archives